Quadrilocale in vendita

Tivoli, Via Campania - Villa Adriana
€ 149.000
4 locali 4 locali
80 Mq 80 Mq
1 bagno 1 bagno

Quadrilocale in vendita

Tivoli, Via Campania - Villa Adriana

Descrizione annuncio

LA TUA NUOVA CASA TI ASPETTA!!!

Se stai cercando un appartamento ristrutturato, in zona centrale e pronto da abitare, senza pensieri e senza lavori da fare, questa proposta potrebbe essere esattamente ciò che desideri.

Ci troviamo nel cuore di Villa Adriana, a pochi passi dalla splendida Villa Adriana, vicino all’autostrada e a tutti i principali servizi: scuole, supermercati, fermate e attività commerciali. Una posizione strategica che ti permette di avere tutto a portata di mano, senza rinunciare alla tranquillità, in un contesto residenziale apprezzato e ben collegato.

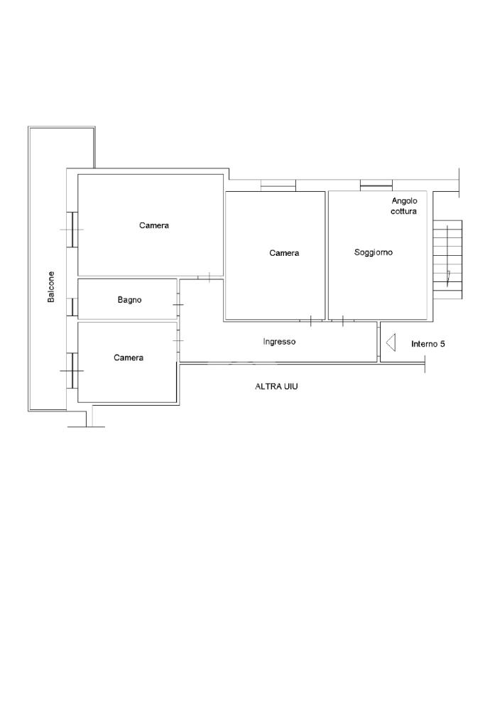
L’APPARTAMENTO

80 mq commerciali
Stabile in cortina
Completamente ristrutturato nel 2015
Ottima distribuzione degli spazi
Pronto da abitare

L’immobile si presenta in ottime condizioni, con ambienti curati e funzionali, ideali per una famiglia o per una giovane coppia che desidera una soluzione comoda e già rinnovata. La ristrutturazione ha valorizzato ogni ambiente, rendendo la casa accogliente e moderna, pronta per essere vissuta fin da subito.

Grazie alla funzionale disposizione degli spazi interni, l'immobile offre una terza camera, perfetta come studio per chi lavora da casa, come cameretta aggiuntiva per una famiglia in crescita oppure come stanza per gli ospiti. Una caratteristica che rende l’immobile ancora più versatile e interessante anche in ottica investimento.

COMPOSIZIONE INTERNA

Ingresso accogliente
Sala luminosa con angolo cottura
Tre camere spaziose
Bagno finestrato con doccia
Balcone

Gli spazi sono ben distribuiti e permettono di vivere ogni ambiente con comfort e praticità. La zona giorno è perfetta per i momenti di relax o convivialità, mentre la zona notte garantisce riservatezza e tranquillità. Il balcone rappresenta uno sfogo esterno ideale per una pausa all’aria aperta.

DOTAZIONI E COMFORT

Portone blindato
Climatizzatori in cucina e camera
Tende da sole
Grate di sicurezza
Tapparelle elettriche

Ogni dettaglio è pensato per offrire sicurezza, comodità e qualità della vita quotidiana. Le dotazioni presenti consentono di abitare l’immobile senza dover affrontare ulteriori spese o interventi.

PERCHÉ SCEGLIERLA?

Zona centrale e ben servita
Nessun lavoro da fare
Ottima soluzione per famiglie o giovani coppie
Ideale anche come investimento
Servizi e collegamenti a pochi passi

Una soluzione perfetta per chi desidera vivere in una zona strategica, con tutte le comodità a disposizione e la serenità di un immobile già ristrutturato, pronto ad accogliere i nuovi proprietari.

Per informazioni o per fissare una visita:
0774 381955
WhatsApp 339 1140670

È disponibile anche una consulenza mutuo gratuita e senza impegno con la nostra consulente dedicata.

Mostra tutto

Nelle vicinanze

Trasporto pubblico Trasporto pubblico
COTRAL Villa Adriana (dir. Tivoli)
COTRAL Villa Adriana (dir. Tivoli)
370 m
CORTAL Villa Adriana (dir. Roma)
CORTAL Villa Adriana (dir. Roma)
430 m
Ricariche auto elettriche Ricariche auto elettriche
Villa Adriana Parcheggio Via Val Gardena | EnelX
420 m
Conad Superstore Tivoli | EnelX
550 m
EnelX EVA+ c/o +VISTA FABBRICA OCCHIALI
760 m
Villanova Via Cavour | EnelX
1,9 Km
Tivoli Viale Roma | EnelX
2,9 Km
Scuole Scuole
Scuole
80 m
Scuola media statale Vincenzo Pacifici
160 m
Scuola Materna Suore Salesiane
1,2 Km
Scuola Elementare Eduardo De Filippo
1,4 Km
Istituto comprensivo Giovanni XXIII
1,4 Km
Farmacia Farmacia
Farmacia Tornaghi
1,5 Km
Centro Analisi Villanova
1,5 Km
Farmacia Rossetti
2,0 Km
Farmacia
2,7 Km
Renzo Poggi
2,7 Km
Ospedali Ospedali
Pronto Soccorso Ospedale "San Giovanni Evangelista"
2,7 Km
Ospedale San Giovanni Evangelista
2,8 Km
Supermercati Supermercati
Conad
610 m
Maury's
1,1 Km
Carrefour
1,2 Km
EuroSpin
1,3 Km
Supermercati
1,7 Km
Negozi Negozi
Negozi
280 m
H24 Market Villa Adriana
390 m
Bella moda
420 m
OVS
640 m
Il Fornaretto
2,1 Km
Bar Bar
Bar
2,4 Km
Kraken Bar
2,7 Km
Ristoranti Ristoranti
L'Arte della Pizza
240 m
King Sushi Wok
400 m
Natural Pizza
420 m
La Pergola
530 m
Hotel Ristorante Adriano
700 m
Mostra tutto

Caratteristiche

Rif.:
61185857
Piano:
1 di 3 (Piano basso)
Balconi:
1
Camere da letto:
2
Arredamento:
Assente
Condizionamento:
Autonomo
Mostra tutto
Prezzo Prezzo
€ 149.000
Rata mutuo Rata mutuo
€ 702 / mese
Spese annue Spese annue
€ 525
Proponi il tuo prezzoProponi il tuo prezzo

Classe Energetica

G
G
G
G
G
G
G
G
G
EP globale non rinnovabile:
190.00 kW h/m² anno
EP globale rinnovabile:
190.00 kW h/m² anno
EP invernale del fabbricato:
EP estiva del fabbricato:
Anno di costruzione:
1970
Riscaldamento:
Autonomo
Tipo impianto:
A radiatori
Tipo alimentazione:
Altro

Ti interessa visionare l'immobile?

Fissa un appuntamento  Fissa un appuntamento

Richiedi informazioni

Clicca su Leggi per aprire l'informativa
* Questi campi sono obbligatori

Calcola il tuo mutuo

Semplice e senza impegno
Anticipo

( % )
Mutuo

( % )

pochi semplici passi

inserisci i tuoi dati
Questionario completato
Grazie per aver richiesto un appuntamento senza impegno con un nostro Consulente del Credito e Assicurativo.

Hai inserito correttamente tutti i dati necessari e a breve riceverai una e-mail con un link da convalidare per inviare i tuoi dati.
Affiliato
Villa Adriana Mediazioni Srl
Via Tiburtina, 122 00019 Tivoli (RM)

Il nostro staff


  • Tania Ellari
    Coordinatrice

  • Lorenzo Parisi
    Affiliato

  • Luna Ricci
    Coordinatrice
Via Tiburtina, 122 00019 Tivoli (RM)
Zona: Villa Adriana -Colli Santo Stefano
Mostra su mappa
Orari: dal lunedì al venerdì dalle 9.00 alle 13.00 e dalle 16.00 alle 19.30 - il sabato dalle 9.00 alle 13.00 e dalle 16.00 alle 18.00
Affiliato
Villa Adriana Mediazioni Srl
Via Tiburtina, 122 00019 Tivoli (RM)

2026 Tecnocasa Franchising S.p.A. - P. IVA 08365160152 - Via Monte Bianco 60/A 20089 Rozzano (MI). Ogni agenzia ha un proprio titolare ed è autonoma. Privacy policy | Policy utilizzo | Cookie policy