Quadrilocale in vendita

Tivoli, Via emilia - Villa Adriana
€ 175.000
4 locali 4 locali
114 Mq 114 Mq
1 bagno 1 bagno

Quadrilocale in vendita

Tivoli, Via emilia - Villa Adriana

Descrizione annuncio

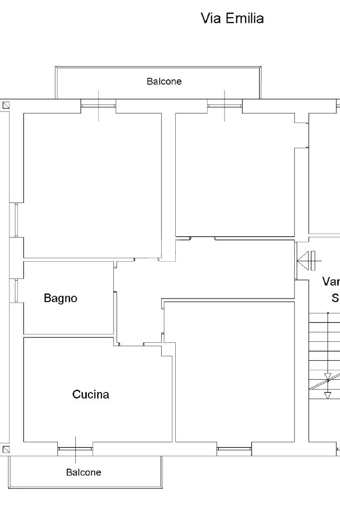
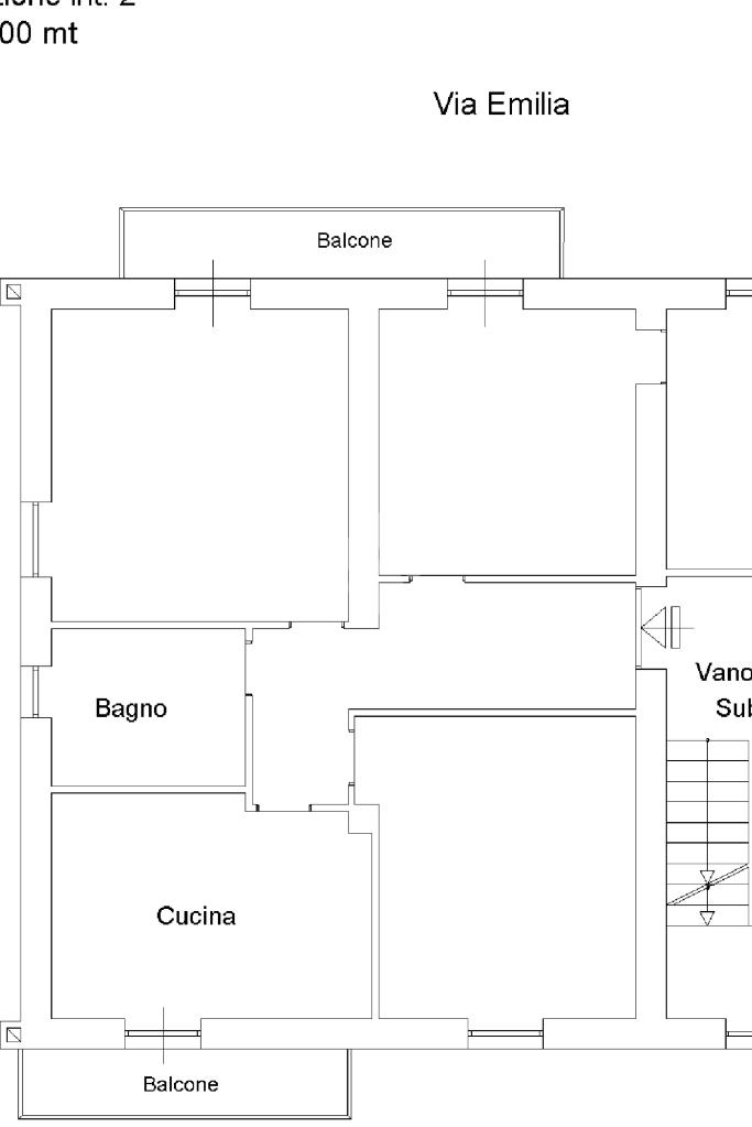
Appartamento luminoso di 114 mq con balconi, posto auto coperto e corte privata

Proponiamo in vendita un’accogliente abitazione di 114 mq commerciali, situata al primo piano di un piccolo fabbricato recentemente ristrutturato esternamente, composto da sole tre unità abitative.

L’immobile si trova in una zona residenziale tranquilla e servita, comoda per raggiungere negozi, scuole e principali collegamenti. La casa si distingue per la funzionale distribuzione degli spazi interni e la possibilità di ricavare una stanza da adibire a smart working, ideale per chi lavora da casa.

La soluzione dispone di due balconi, uno con accesso dal soggiorno e da una delle camere e l’altro dalla cucina, che garantiscono luce e aerazione agli ambienti.

Gli spazi interni sono ampi e luminosi, e comprendono un soggiorno, una cucina abitabile, tre camere da letto, un bagno con doccia, una cantina al piano seminterrato e una porzione di lastrico solare, ideale per pannelli solari o fotovoltaici.

Completano la proprietà un posto auto coperto e una corte pavimentata di pertinenza esclusiva.

L’immobile rappresenta una soluzione ideale per chi cerca spazio, luminosità e comodità in un contesto riservato e ben collegato.

0774 381955
333 9847902 (anche WhatsApp)

È disponibile il consulente del credito Kiron per una consulenza mutuo gratuita e senza impegno.

Mostra tutto

Nelle vicinanze

Trasporto pubblico Trasporto pubblico
CORTAL Villa Adriana (dir. Roma)
CORTAL Villa Adriana (dir. Roma)
310 m
COTRAL Villa Adriana (dir. Tivoli)
COTRAL Villa Adriana (dir. Tivoli)
320 m
Ricariche auto elettriche Ricariche auto elettriche
Villa Adriana Parcheggio Via Val Gardena | EnelX
440 m
EnelX EVA+ c/o +VISTA FABBRICA OCCHIALI
570 m
Conad Superstore Tivoli | EnelX
720 m
Villanova Via Cavour | EnelX
1,7 Km
Esteticar
3,0 Km
Scuole Scuole
Scuole
290 m
Scuola media statale Vincenzo Pacifici
390 m
Scuola Materna Suore Salesiane
990 m
Scuola Elementare Eduardo De Filippo
1,2 Km
Istituto comprensivo Giovanni XXIII
1,3 Km
Farmacia Farmacia
Farmacia Tornaghi
1,3 Km
Centro Analisi Villanova
1,4 Km
Farmacia Rossetti
1,9 Km
Farmacia
2,9 Km
Renzo Poggi
2,9 Km
Ospedali Ospedali
Pronto Soccorso Ospedale "San Giovanni Evangelista"
3,0 Km
Supermercati Supermercati
Conad
740 m
Maury's
840 m
Carrefour
980 m
EuroSpin
1,1 Km
Supermercati
1,5 Km
Negozi Negozi
Negozi
250 m
Bella moda
370 m
H24 Market Villa Adriana
420 m
OVS
430 m
Il Fornaretto
2,0 Km
Bar Bar
Bar
2,5 Km
Kraken Bar
2,9 Km
Ristoranti Ristoranti
L'Arte della Pizza
220 m
Natural Pizza
390 m
King Sushi Wok
450 m
BioDomus Self Bistrot
630 m
La Pergola
680 m
Mostra tutto

Caratteristiche

Rif.:
61005758
Piano:
1 di 3 (Piano basso)
Posti auto:
1
Balconi:
2
Camere da letto:
3
Arredamento:
Assente
Mostra tutto
Prezzo Prezzo
€ 175.000
Rata mutuo Rata mutuo
€ 817 / mese
Spese annue Spese annue
€ 250
Proponi il tuo prezzoProponi il tuo prezzo

Classe Energetica

F
F
F
F
F
F
F
F
F
EP globale non rinnovabile:
158.27 kW h/m² anno
EP globale rinnovabile:
158.27 kW h/m² anno
EP invernale del fabbricato:
EP estiva del fabbricato:
Anno di costruzione:
1970
Riscaldamento:
Autonomo
Tipo impianto:
A radiatori
Tipo alimentazione:
Altro

Ti interessa visionare l'immobile?

Fissa un appuntamento  Fissa un appuntamento

Richiedi informazioni

Clicca su Leggi per aprire l'informativa
* Questi campi sono obbligatori

Calcola il tuo mutuo

Semplice e senza impegno
Anticipo

( % )
Mutuo

( % )

pochi semplici passi

inserisci i tuoi dati
Questionario completato
Grazie per aver richiesto un appuntamento senza impegno con un nostro Consulente del Credito e Assicurativo.

Hai inserito correttamente tutti i dati necessari e a breve riceverai una e-mail con un link da convalidare per inviare i tuoi dati.
Affiliato
Villa Adriana Mediazioni Srl
Via Tiburtina, 122 00019 Tivoli (RM)

Il nostro staff


  • Tania Ellari
    Coordinatrice

  • Claudia Tiseo
    Coordinatrice

  • Lorenzo Parisi
    Affiliato

  • Luna Ricci
    Coordinatrice
Via Tiburtina, 122 00019 Tivoli (RM)
Zona: Villa Adriana -Colli Santo Stefano
Mostra su mappa
Orari: dal lunedì al venerdì dalle 9.00 alle 13.00 e dalle 16.00 alle 19.30 - il sabato dalle 9.00 alle 13.00 e dalle 16.00 alle 18.00
Affiliato
Villa Adriana Mediazioni Srl
Via Tiburtina, 122 00019 Tivoli (RM)

2026 Tecnocasa Franchising S.p.A. - P. IVA 08365160152 - Via Monte Bianco 60/A 20089 Rozzano (MI). Ogni agenzia ha un proprio titolare ed è autonoma. Privacy policy | Policy utilizzo | Cookie policy